关于我们
公司简介
社会责任
企业文化
产品中心
环网柜系列
高压产品系列
低压产品系列
动力柜/小三箱系列
资质证书
公司新闻
行业资讯
新闻资讯
公司新闻
行业资讯
服务支持
售后服务
营销网络
联系我们
公司简介
浙江散原电气有限公司是一家以输配电成套设备为导,集研发、制造、销售服务等—体化的企业
社会责任
"为行业创造价值"是散原对整个社会的庄重承诺。
企业文化
在新技术开发的跑道上,我们从未停止脚步,奋斗不息,创新不止!
新系列产品
XF-12固体绝缘环网柜
HXGN(L)□-12全绝缘充气环网柜
KYN28-12铠装移开式交流金属封闭开关设备
MNS低压抽出式开关柜
产品分类
环网柜系列
高压产品系列
低压产品系列
动力柜/小三箱系列
售后服务
快速响应每一次援助请求
营销网络
我们的营销能力由多维度能力支撑
>
产品中心
>
低压产品系列
低压产品系列
GCK低压抽出式开关柜
联系我们
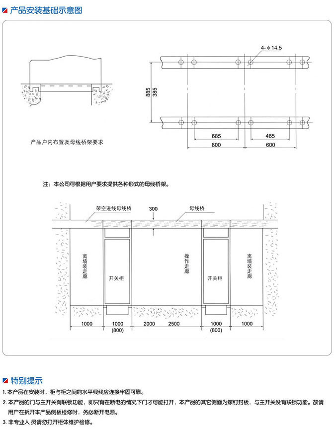
产品详情